top of page
Category: Corporate Renovation
Investment Firm, 2017
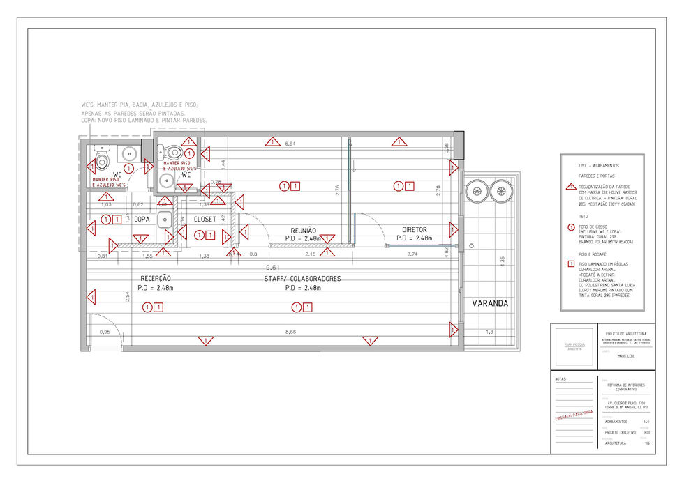
Challenge: Accommodate the Staff in 2-people-workstations + Design the Director's Office and an integrated Meeting Room
Area: 645 ft² - 60m²
Proposal: Workspace designed and renovated in a very tight deadline, in only 20 days. The space concept and the architectural draws were produced in 5 days + the renovation lasted 15 days. Demountable glass walls were used between the Director's Office and the Meeting room to bring the natural light into spaces, and custom millwork was designed to create extra storage spaces.

bottom of page










